A part of
History
-
Uppförande - Uppskattad: 1700 (Litteratur)
- Tidigare ort för byggnad m.m.Sverige Småland Kalmar Nybro Gullaskruvsäker
Återuppförande: 1936 (Litteratur)
- Nuvarande namn för byggnad m.m.Biblioteksflygeln, Skogaholms herrgård, Skansen
Relation
-
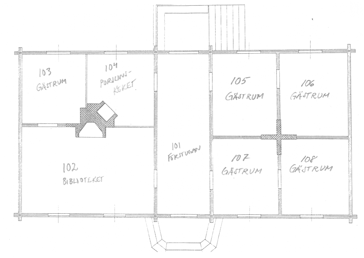
Object/Work – Components 8 related objects
- BuildingFörstugan (SKABYG.80803_101)
- BuildingBiblioteket (SKABYG.80803_102)
- BuildingGästrummet (SKABYG.80803_103)
- BuildingPorslinsköket (SKABYG.80803_104)
- BuildingGästrummet (SKABYG.80803_105)
- BuildingGästrummet (SKABYG.80803_106)
- BuildingGästrummet (SKABYG.80803_107)
- BuildingGästrummet (SKABYG.80803_108)
Placement
References
-
- LitteraturreferenserNordiska museet (1980). Skansens hus och gårdar. ([Ny, bearb., utök. uppl.]). Stockholm: Nordiska mus.
License information
- License Contact owner for more information
Metadata
- Identifier SKABYG.80803
- Part of collection Skansens museala byggnader
- Owner of collection Skansen
- Institution Skansen
- Date published September 26, 2018
- Date updated May 19, 2025
- DIMU-CODE 021057922344
- UUID 27b11bae-7797-4de6-8bc7-0214439a4421
- Tags
Add a comment or suggest edits
To publish a public comment on the object, select «Leave a comment». To send an inquiry directly to the museum, select «Send an inquiry».