A part of
History
-
Huset uppfördes ursprungligen på 1600-talet i Ljusnarsbergs kommun i Västmanland och kom till Skansen 1895.
Innan flytten till Skansen hade huset haft många funktioner som inte representeras i dagsläget. Det som på planritningen nu är omnämnt Helgdagsstugan har tidigare haft funktion av tingssal och handelsbod, samt matbod mellan åren 1844 - 1895. Stugan har fungerat som både vardags- och helgdagsstuga samt matsal, innan det på 1840-talet blev till ett andra kök i och med insättandet av en s.k. Dormsjöspis. (Arkiv)
När Laxbrostugan flyttades till Skansen ändrades den från hur den såg ut på 1860-talet, då den senast var bebodd, till att se ut så som man föreställde sig på 1600-talet i ett förmöget hem. Bland annat tog man upp igensatta fönster och försedde fönstren med blyspröjs. Man byggde även blindbottnar under de stora rummen samt tog bort den yttre panelen på förstugan. (Litteratur, Arkiv)
Flyttning: 1895 (Litteratur, Arkiv)
Stugan fyllde totalt 6 vagnslaster som flyttades ner till Stockholm via tåg, varav 4 lämnade Kopparberg den 20/4 1895 och 2 st följande dag.- Tidigare placeringSverige Västmanland Nya Kopparbergs bergslag Ljusnarsberg Laxbrosäker
Återuppförande: February 15, 1896 (Arkiv)
Under ledning av byggmästare Hakon Larsson, i samarbete med arkitekten Agi Lindegren samt dekorationsmålaren E. Berg.- Nuvarande namn för byggnad m.m.Laxbrostugan, Bergsmansgården, Skansen
- ArkitektLindegren, Agi (1858 - 1927)säker
- Nuvarande ort för byggnad m.m.Sverige Stockholm Stockholm Stockholm Skansen Bergsmansgården Djurgårdensäker
Annat - Uppmätning: 1938 (Arkiv)
Uppförande: 1600 - 1699 (Litteratur)
- Tidigare ort för byggnad m.m.Sverige Västmanland Nya Kopparbergs bergslag Ljusnarsberg Laxbrosäker
Relation
-
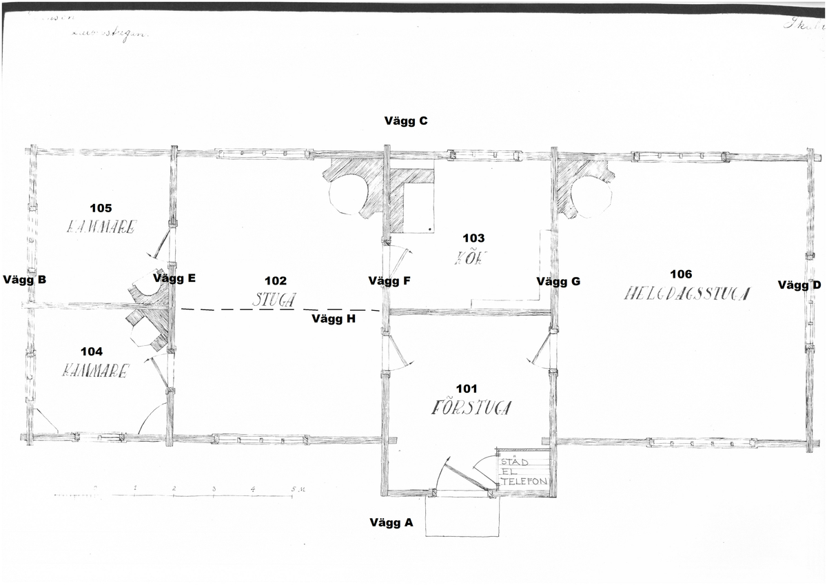
Object/Work – Components 7 related objects
- BuildingFörstugan (SKABYG.60201_101)
- BuildingStugan (SKABYG.60201_102)
- BuildingKöket (SKABYG.60201_103)
- BuildingKammaren (SKABYG.60201_104)
- BuildingKammaren (SKABYG.60201_105)
- BuildingHelgdagsstugan (SKABYG.60201_106)
- BuildingSKABYG.60201_Utv
References
-
- ArkivreferenserKulturhistoriska arkivet. 3.2.5 Bergsmansgården. Löpnr 352 Beskriver historik.
- LitteraturreferenserNordiska museet (1980). Skansens hus och gårdar. ([Ny, bearb., utök. uppl.]). Stockholm: Nordiska mus. Beskriver uppförande, flyttning, ändring.
- ArkivreferenserKulturhistoriska arkivet. 3.2.5 Bergsmansgården. Löpnr. 357 Beskriver återuppförande och ändring.
- ArkivreferenserKulturhistoriska arkivet. 3.2.5. Bergsmansgården. Löpnr 28-29 Beskriver återuppförande.
- ArkivreferenserKulturhistoriska arkivet. 3.2.5 Bergsmansgården. Löpnr 317 Beskriver flyttning.
- ArkivreferenserKulturhistoriska arkivet. 3.2.5 Bergsmansgården. Kapsel 3 Beskriver uppmätning.
License information
- License Contact owner for more information
Metadata
- Identifier SKABYG.60201
- Part of collection Skansens museala byggnader
- Owner of collection Skansen
- Institution Skansen
- Date published October 10, 2018
- Date updated May 19, 2025
- DIMU-CODE 021057935309
- UUID 76128bf5-9a7f-41bb-ae54-d5151547f70f
- Tags
Add a comment or suggest edits
To publish a public comment on the object, select «Leave a comment». To send an inquiry directly to the museum, select «Send an inquiry».