Other information ALBIN BALLAD
Bredd över allt 2,96 meter
Längd över allt 9,14 meter
Byggår: 1971-1981
Tillverkare: Albin Marin
Konstruktör: Magnusson, Rolf
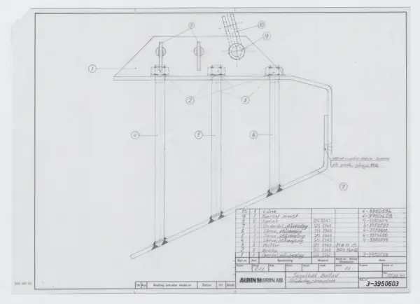
Ritning a. Stävbeslag komplett Datering: 72.03.30 Ritningsnummer: 3-3950603
Ritning b. Stävbeslag Datering: 72.03.30 Ritningsnummer: 3-950602
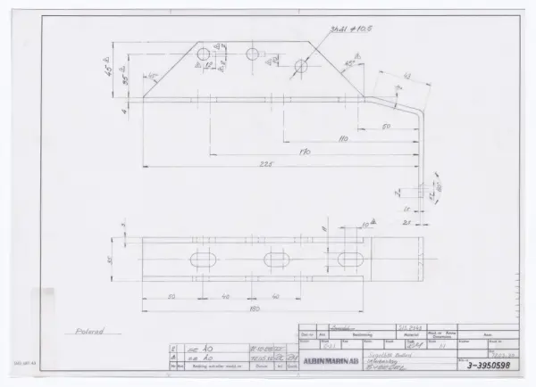
Ritning c. Stävbeslag överdel Datering: 72.03.30 Ritningsnummer: 3-3950598
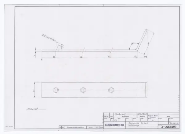
Ritning d. Stävbeslag underdel Datering: 72.03.30 Ritningsnummer: 3-3950597
Konstruktören berättar: På sensommaren 1971 gick Arvika plastindustri i konkurs. Konkursfövaltaren Bengt Hyttner annonserade ut konkursboet i rikstidningarna. Jag tog kontakt med Albin M:s Vd Uno Eriksson, som jag kände väl, att Joker kanske kunde vara en lämplig produkt för AM. Jag blev upplyst om att de hade konstruktioner som räckte gott och väl. De behövde ingen Joker. En aning avsnoppad så att säga.
En timma senare blev jag uppringd av Lars Larsson, ägaren till Albin Marin, som genom Uno nu fått kännedom om konkursboet i Arvika. Han frågar om jag kunde ställa upp nästa morgon för en resa till Arvika, han förklarade att Joker var jätteintressant! Han skulle även på resan ta med sig Hyttner.
Lars Larsson en handelskraftig man, hade på mindre än en halvtimma avverkat vad som fanns i verkstad och lager. När vi hamnade på det lilla kontoret och han frågade efter ordboken, tog Jerry Albinsson fram en skokartong fylld med ett 100-tals notiser från en annons i Båtnytt där presumtiva kunder fyllt i namn och adress för att få broschyrer, samtliga obesvarade pga tidsbrist! Jag kommer väl ihåg LLs storögda kommentar ”Var rädd om den där kartongen, den måste ingå i ett eventuellt köp”.
Väl tillbaks i Karlstad bjöd LL mig och Hyttner på lunch på stadskällaren. När Hyttner gick ut på toa innan lunchen kom på bordet förklarade LL att han hade för avsikt att försöka köpa vad han hade sett. I samma andetag frågade han mig vad jag trodde att han behövde betala, vilket jag inte hade den blekaste aning om. Han frågade också vad min kostnad var för varje tillverkad båt. En summa som han fann rimlig.
Nästa dag ringde LL upp mig och berättade att han hade köpt vad vi tittat på dagen innan. Han förklarade även att han räknade med mig till 100% för att konvertera Joker till en Albin Marin båt. Jag lovade att ställa upp. Men här lovade jag för mycket. Ett eller två samtal på arbetstid kunde jag tolerera, men jag hade ju faktiskt ett åtta till fem jobb att sköta. Jag ställde däremot upp på all fritid.
Nu dröjde det inte länge innan jag blev erbjuden anställning på AM med den fina titeln ”Produktutvecklignschef” samt att ingå i Albin Marins ledningsgrupp. I min arbetsuppgift skulle jag förutom att ta fram nya konstruktioner, skulle jag även bygga upp ett konstruktionskontor för att dokumentera alla båtar. Jag förklarade att det krävdes mer personal än den ritare som fanns då 1971. Och så blev det, men att för mig ta fram nykonstruktioner visade sig omöjligt, det blev även i fortsättningen kvällsarbete hemma.
Joker blev nu under hösten 1971 konverterad till Ballad, allt för att passa in på Albins sätt att bygga båtar tillsammans med Gullmarksvarvet, som stod för allt plastarbete. Tex. Samma regling som Vega, en köl med invändig ballast som alla andra Albinbåtar. Det värsta av allt, Ballad skulle ha en fast propeller. Ingen Albinbåt hade en fällbar propeller. Det tog några båtar i vattnet innan ledninsgruppen fattade mina förklaringar att motståndet var likvärdigt med att hänga en hink i vattnet bakom båten.
Jag hade byggt egna propellrar sedan 1965 till egna båtar. Den här gången kompletterade jag en av mina propellrar med en konstruktion försedd med kuggsegment för att samtidig utfällning, samt överlämnade ritningarna till Alco Metall utanför Örebro. Alco Metalls första med kuggsement. Och tyvärr utan något som helst produktskydd från min sida.