Smelta karbid i ovn III
Smelta karbid i ovn III Harald Hognerud, Kraftmuseet arkiv (Copyright)

Ovn III

Bygg nr. 70, byggeår 1976-78. 5 etasjer, areal: 1270 ²m

Hjertet i karbidproduksjonen

Karbidproduksjon er en svært kraftslukende prosess. 3500 kWt går med til å framstille et tonn teknisk karbid. Ovnen fylles med en blanding av brent kalk og koks. Blandingen fører til at strømmen som passerer ovnen møter en viss motstand som igjen utvikler så stor varme at kalk og kull reagerer med hverandre og danner kalsiumkarbid. Karbiden smelter i ovnen ved ca. 2000º C og tappes i digler som en flytende, hvitglødende masse. Kalsiumkarbiden videreforedles i cyanamidfabrikken. Karbid er hovedråstoff i framstilling av acetylengass.

Ovn III var et av mange tidligere smeltehus og stod som en forlengelse av ovn I (1936) og ovn II (1956).
Ovnen skapte store utfordringer for bedriften.

Den startet første gang i 1978, men medførte en del problemer med driften, med stadige stans og oppstarter. I flere perioder måtte ovn I og ovn II overta produksjonen slik at kundene var sikret karbid og dicy fra Odda. Eksperter fra Japan ble hentet inn for reparasjon og ombygging av ovnen. Den ble startet for kontinuerlig karbidproduksjon i 1982 og var fram til nedleggelsen i 2003 verdens største og best utstyrte karbidovn med en installert transformatorkapasitet på 75 MVA og en belastning på over 60 MW (som strømforbruket til en middels stor norsk by).

Ovn III er et resultat av en Elkem-ovn med tillegg av ovnsteknologi som ble utviklet av ansatte ved Odda Smelteverk og japansk ovnsteknologi. Ovn III var den første enfaseovn utenfor Europa som tok i bruk japanske tappemaskiner.

Ovn III er fredet som et teknisk-industrielt kulturminne og foreslått brukt som visningssenter i Riksantikvarens mulighetsstudie for Smelteverkstomta.

En smelteovn synger alltid naar den er i gang. Dens sang er som lyden av en stor kjempekatt som ligger og maler - en stadig jevn dur som synker og stiger efter som ovnen er i humør til det. Ovnen er et levende vesen, halvt kamerat og halvt fiende.

Harry Langhelle 1924

Hjertet av omnen Harald Hognerud, Kraftmuseet arkiv (Copyright)

Hjertet av karbidproduksjonen var satt sammen av smelteovnen, en skinnegående tappegang til hver av de tre tutene, ringbane med digler med plass for «ei Smelta». Lavetter, hjulgang, hullelektrodesystem og press-senkning til regulering av elektrodene i ovnen. Peileutstyr, gassavlastningsventiler, tappemaskiner, tappedigler, venturieanlegg, styringsrom og truck.

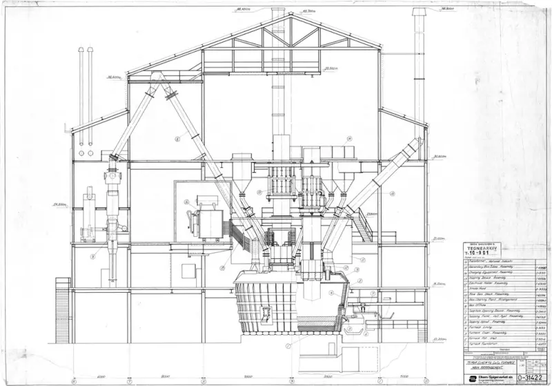
Teikning av Ovn III frå 1976 Attribution-NonCommercial-NoDerivs (CC BY-NC-ND)

Smelteomnen pustar
usynleg karbonmonoksid gjennom lange røyr.
Karbonmonoksid er Smelteovnens pust.
Dødeleg for den arbeidande mann. Ei stille gift som kroppen vil ha,
som bind seg til det vandrande raude blod.
Lukkar blodets opptak av oksygen.
Kroppen syg til seg
Smelteovnens pust.
Den kvelande gift
som struper alt liv.

Lars Ove Seljestad - Storspring

Ovn III i drift Arvid Aga, Kraftmuseet arkiv (Copyright)

Informasjonsskilt på Smelteverkstomta

Order this image

Share to